Home
Progetti
Referenze
Curriculum
Studio
Contatto
La Residenza
Descrizione
Torre Arbedo
Descrizione
Stazione FFS Lugano
Descrizione
1
2
3
Home
Progetti
Monofamiliari
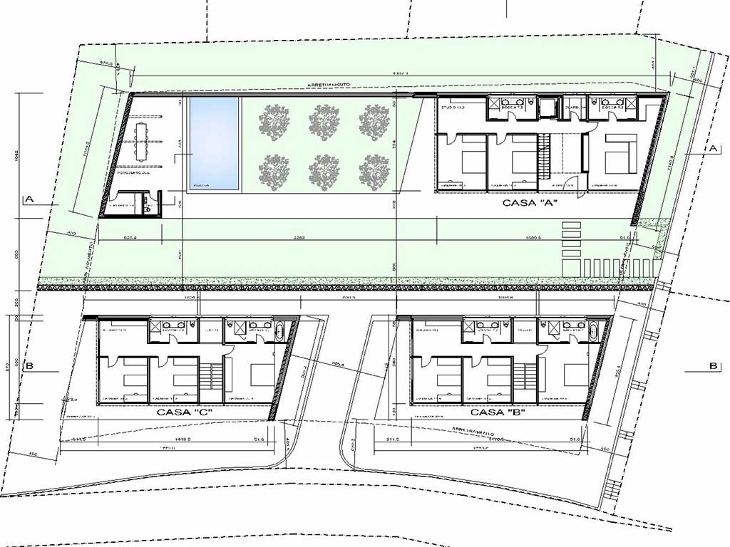
Tre case
Tre case
2011 - Tre case, Breganzona